Materiál domu
Sruby/roubenky
Typ domu
Dům
Typ budovy
Rodinný dům
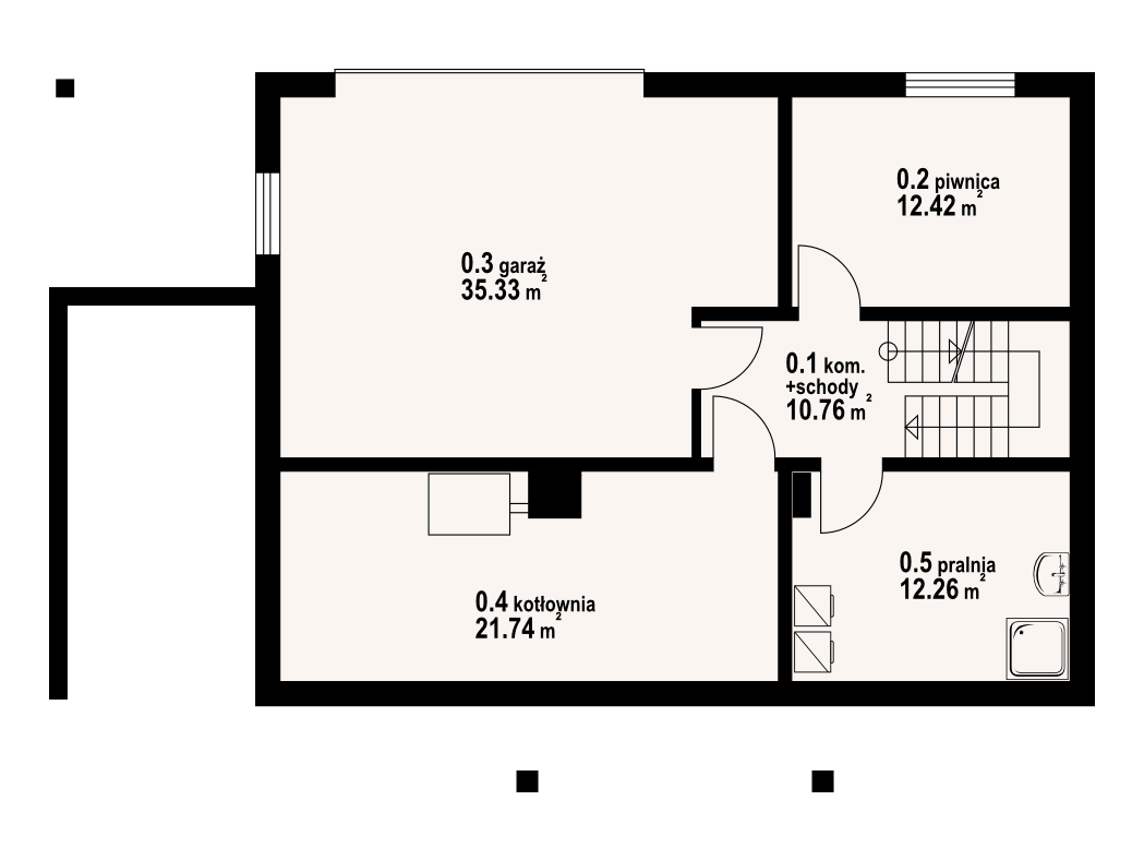
Garáž
V suterénu
Suterén
Kompletní
Podkroví
Obytné
Parametry
| Střecha | |
|---|---|
| Plocha střechy | 235.88 m² |
| Typ střechy | Vícevalbová |
| Úhel střechy | 40° |
| Plocha | |
|---|---|
| Využitelná plocha | 138.07 m² |
| Zastavěná plocha | 111.3 m² |
| Celková plocha | 271.76 m² |
| Garážová plocha | 35 m² |
| Pozemek | |
|---|---|
| Minimální šířka pozemku | 20.7 m |
| Minimální délka pozemku | 18 m |
| Úzký pozemek | Ne |
| Šikmý pozemek | Ano |
| Orientováno na jih | Ne |
Půdorysy & plány
Máte zájem?
O naší společnosti
Společnost Lucon CZ, s. r. o. je firma, které se zabývá veškerou stavební činností. Máme bohaté zkušenosti s výstavbou v oblasti jak dřevostaveb, tak zděných staveb na klíč. U dřevostaveb jsme schopni nabídnout hned několik technologií od modulové výstavby, přes dřevěné panely až po stavby roubenek a srubů.