Materiál domu
Sruby/roubenky
Typ domu
Dům
Typ budovy
Rodinný dům
Garáž
Bez garáže
Suterén
Žádný
Podkroví
Obytné
Parametry
| Střecha | |
|---|---|
| Plocha střechy | 181.25 m² |
| Typ střechy | Sedlová |
| Úhel střechy | 42° |
| Plocha | |
|---|---|
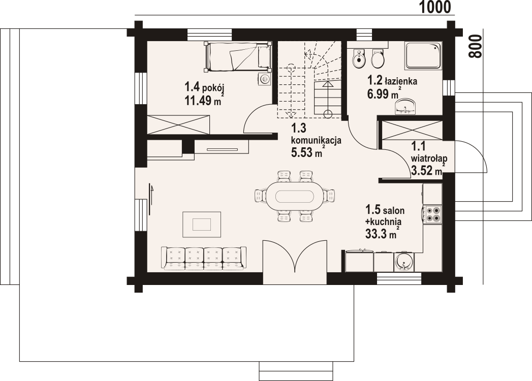
| Využitelná plocha | 108.24 m² |
| Zastavěná plocha | 80 m² |
| Celková plocha | 123.99 m² |
| Pozemek | |
|---|---|
| Minimální šířka pozemku | 18 m |
| Minimální délka pozemku | 16 m |
| Úzký pozemek | Ano |
| Šikmý pozemek | Ne |
| Orientováno na jih | Ne |
Půdorysy & plány
Máte zájem?
O naší společnosti
Společnost Lucon CZ, s. r. o. je firma, které se zabývá veškerou stavební činností. Máme bohaté zkušenosti s výstavbou v oblasti jak dřevostaveb, tak zděných staveb na klíč. U dřevostaveb jsme schopni nabídnout hned několik technologií od modulové výstavby, přes dřevěné panely až po stavby roubenek a srubů.